top of page
HOME
SET DESIGN
BIO & RESUME
GET IN TOUCH
More...
Use tab to navigate through the menu items.
stacey's house - main floor
STUDIO SET
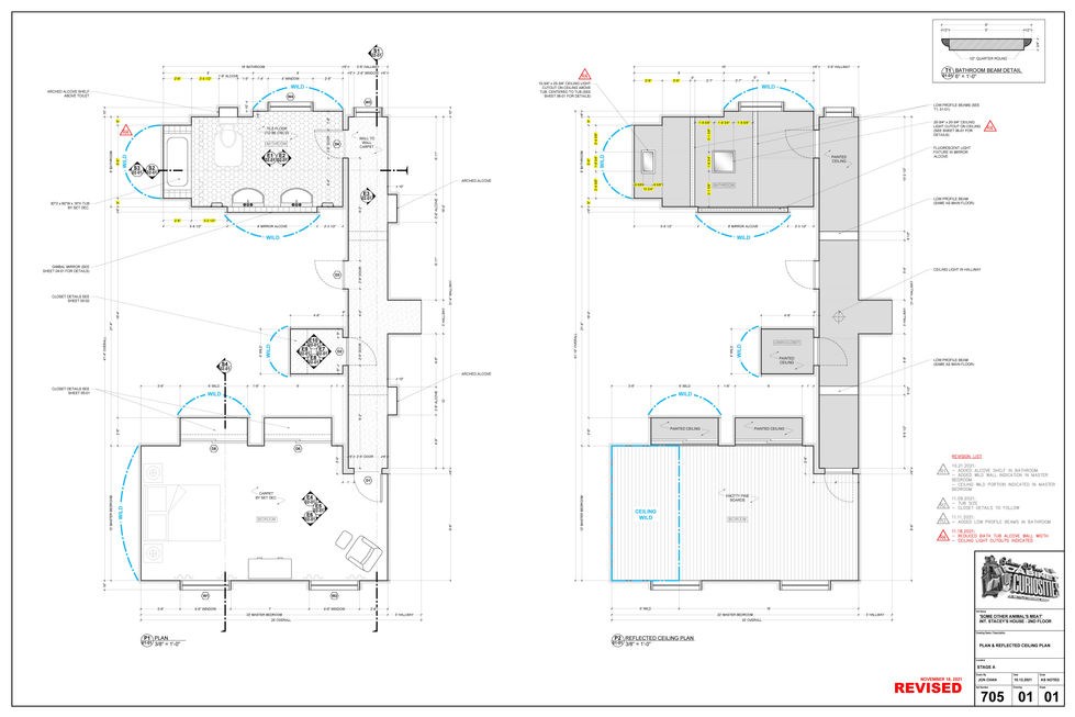
stacey's house - 2nd floor
STUDIO SET
Stacey's house - Unfinished Basement
STUDIO SET
bottom of page